16PS
PALAU-SATOR
2016
Construcció d'una casa entre mitgeres
Arquitectura
Rossend Julià Morera
Col·laboració: ArcStudi
Fotografia
Descripció
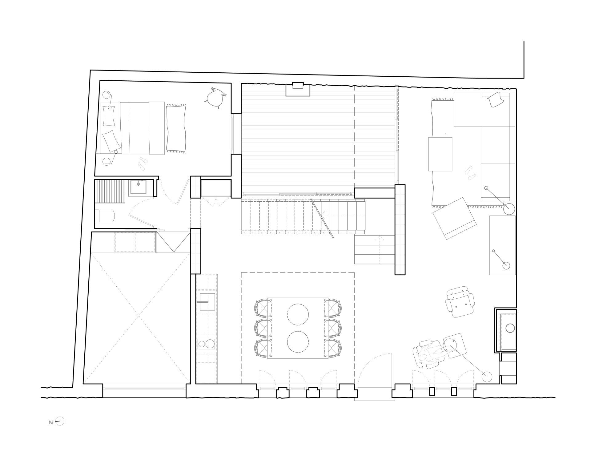
Habitatge unifamiliar d’obra nova.
La casa es troba en el casc antic de la població, fora i a prop de les muralles medievals.
La construcció ocupa pràcticament la superfície del terreny, està alineada amb el vial i adossada als llindars laterals, amb un pati al centre del llindar amb el veí posterior. L’existència d’aquest pati, millora molt les condicions d’il·luminació natural i ventilació de la construcció, atès, sobretot, a que el solar disposa d’una sola façana. Aquest pati està pensat com a nucli vertebrador de la composició de la casa i les principals estances es troben en relació amb ell.
Com a rèplica interior d’aquest pati, la distribució interior gira entorn d’un espai a doble alçada de les mateixes proporcions - separat d’aquest només per una gran vidriera - i que vincula els dos nivells en que es desenvolupa la casa. La confluència dels dos espais es converteix en el nucli de la casa i permet, al mateix temps, la comunicació vertical entre els dos nivells i la connexió entre les dues bandes de la planta superior.
La utilització de la fusta a l’interior, - sostre, paviment i escala – dóna caliu a la casa. L’equilibri entre els materials naturals i industrials aporten qualitat i personalitat a tots els espais de l’habitatge.
















