15RB
SANTS, BARCELONA
2015
Reforma d'un àtic
Arquitectura i interiorisme
ArcStudi
Marta Martínez Nieto
Fotografia
Descripció
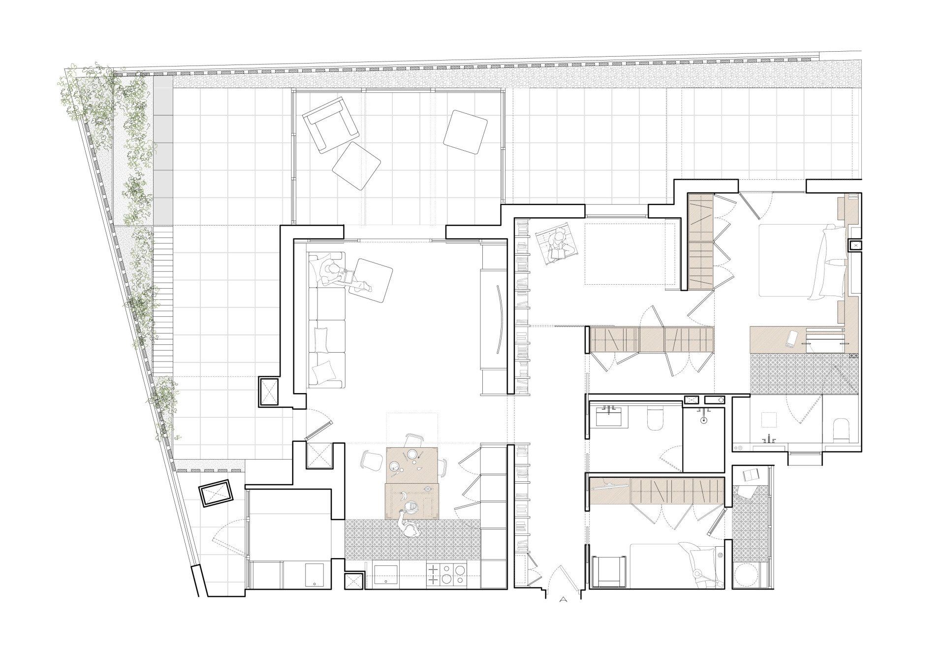
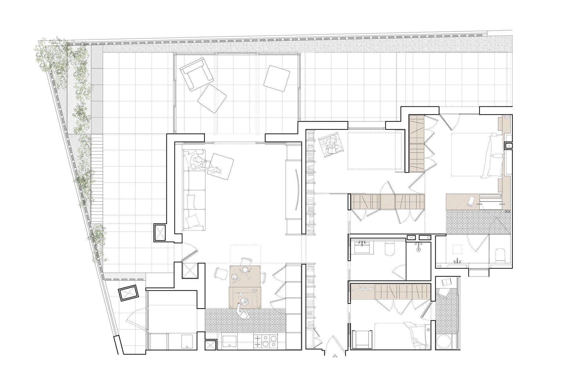
Reforma d'un àtic per un matrimoni de mitjana edat i una persona gran, al barri de Sants de Barcelona.
Espais inicials excessivament fragmentats, sense lògica zonal ni de perspectives.
La transformació comença en enrunar tots els envans no estructurals. Es pretén atribuir de multifuncionalitat alguns dels espais adjudicant-los un estatus d'ús més enllà de la simple criculació i distribució. A trets generals, la nova configuració queda articulada per un eix central destinat a gran llibreria, que divideix amb claredat l'habitatge en dues parts. Es realitza un treball minuciós de visuals i un disseny exhaustiu de tot el mobiliari interior.













