16CA
SANT ANTONI, BARCELONA
2016
Reforma d'un habitatge
Arquitectura
ArcStudi
Fotografia
Descripció
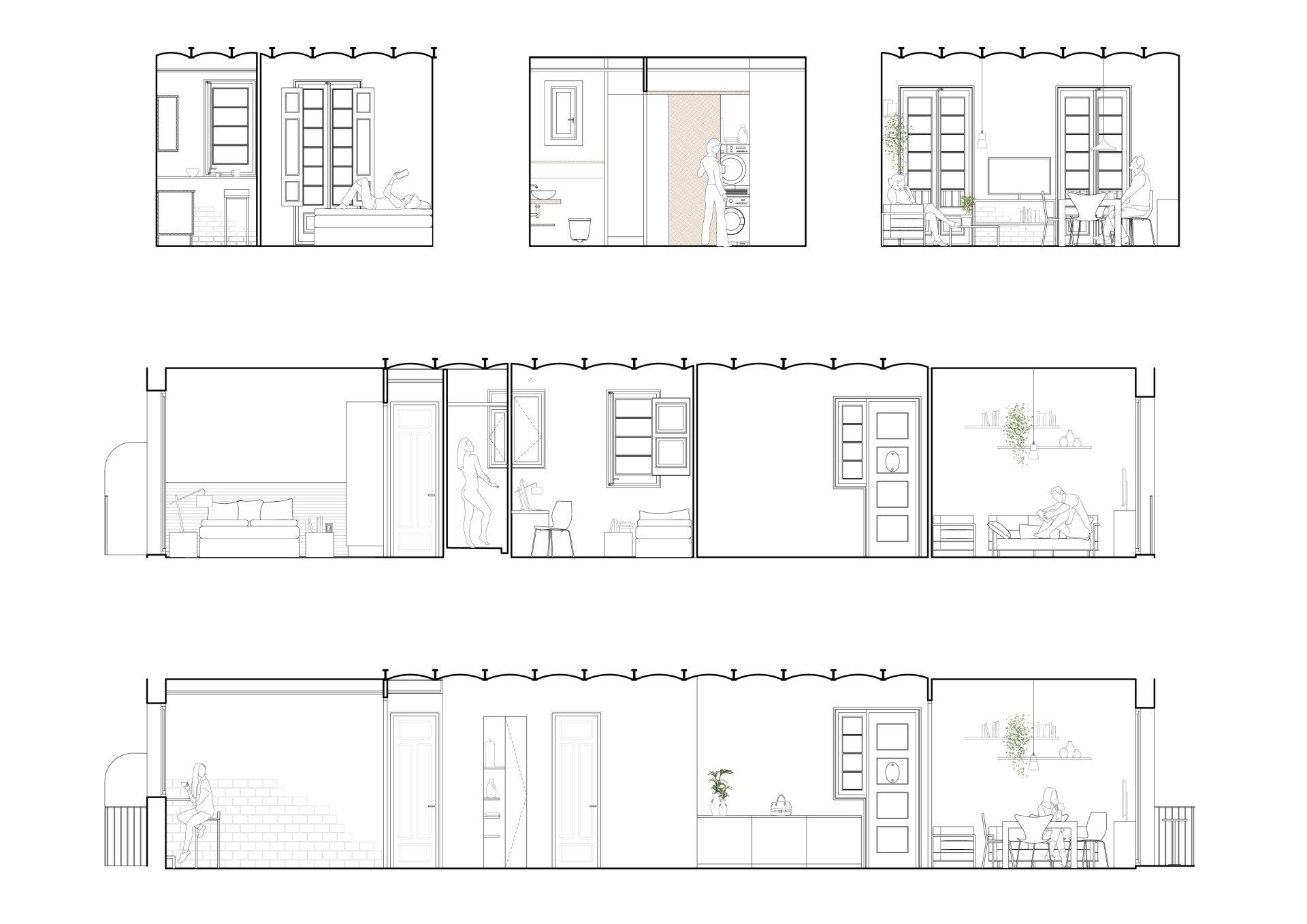
Reforma d'un habitatge per una noia jove, al barri de Sant Antoni de Barcelona.
El projecte parteix d'una petita joia de l'arquitectural tradicional de l'Eixample de Barcelona, transformada per la successió de diferents propietaris que van anar-hi vivint, desdibuixant-ne la seva essència original.
Tot i els acabats que es troben a l'iniciar el projecte, per l'època de construcció de l'edifici s'intueix que es podran recuperar molts dels elements originals.
Es tracta d'un projecte en el que amb un pressupost molt limitat, s'aconsegueixen dos objectius: per un costat es fan alguns canvis de distribució per adaptar la configuració dels espais i la relació entre ells a l'estil de vida de la persona que hi viurà; i per altra banda es posen en valor els amterials i elements constructius de l'arquitectura barcelonina de principis del s. XX.










