18CA
PEDRALBES, BARCELONA
2018
Reforma d'un habitatge
Arquitectura
ArcStudi
Interiorisme
D4 Design
Fotografia
Descripció
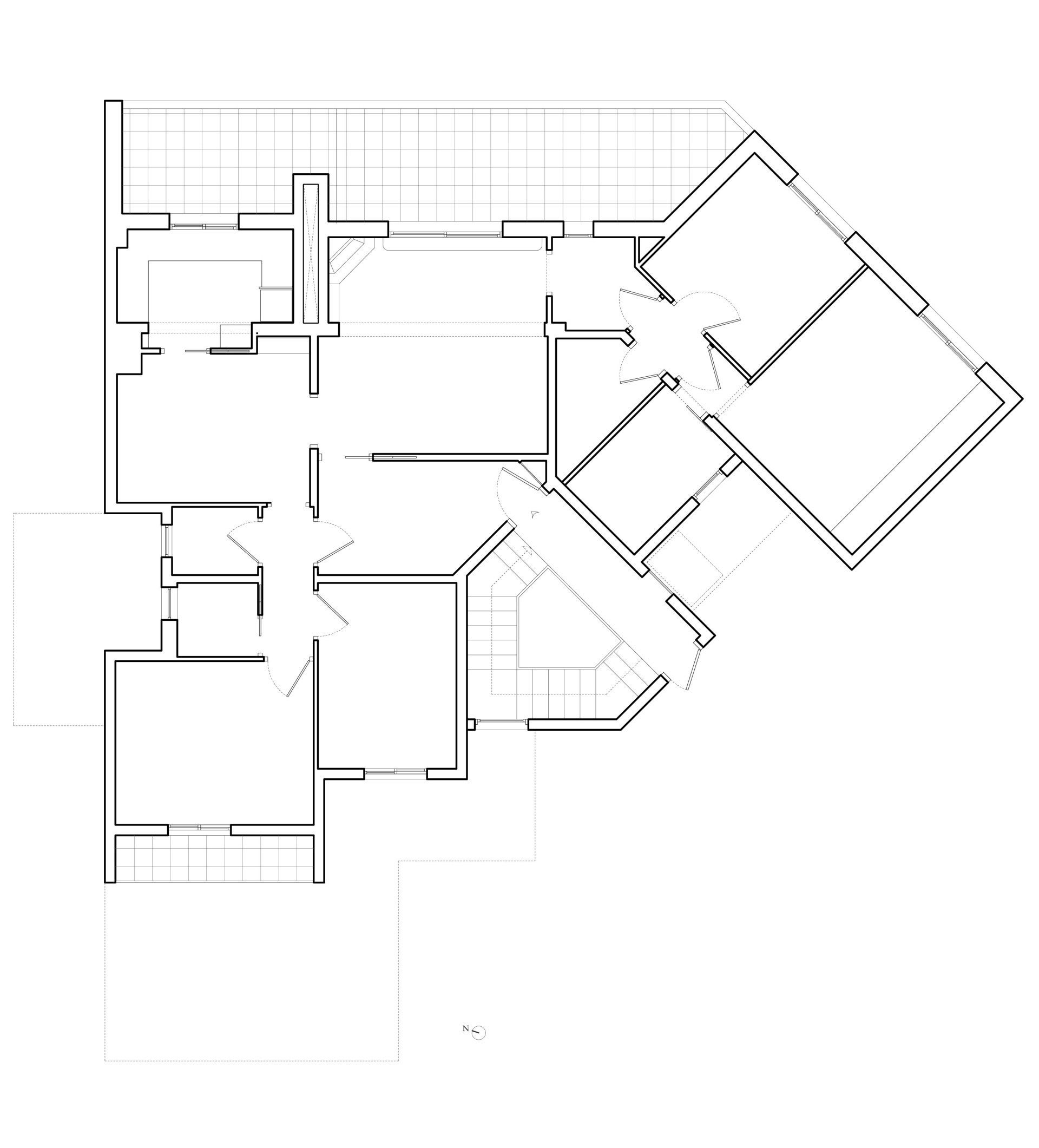
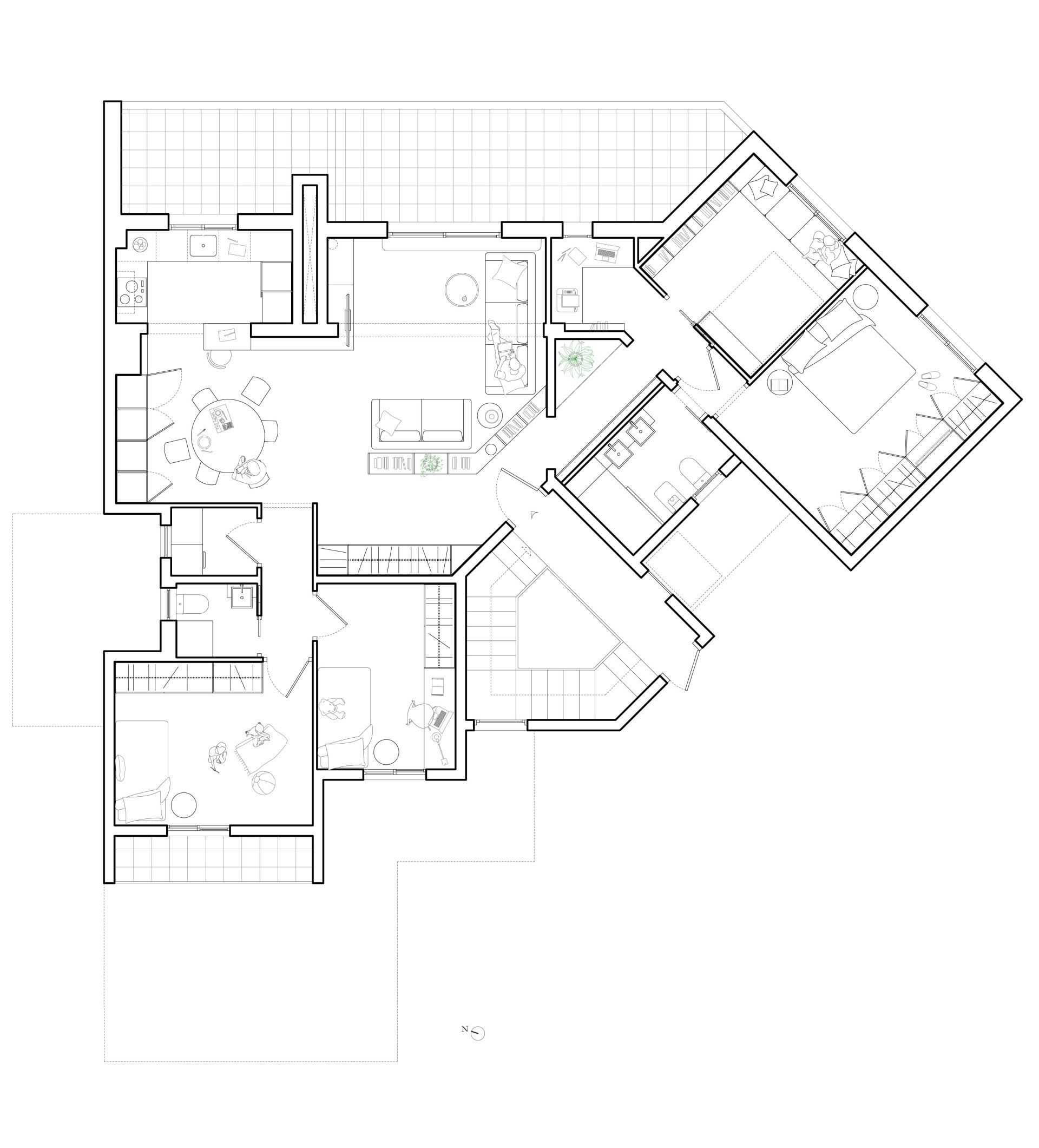
Reforma d'un habitatge per una parella amb dos fills, al barri de Pedralbes de Barcelona.
La principal problemàtica que presentava l'habitatge era la configuració de l'accés i la circulació cap a una de les zones de l'habitatge, on existia un recorregut poc intuïtiu i llarg, envaint la sala d'estar-menjador.
Partint d'aquesta premissa, s'obre un pas en un dels murs de càrrega, creant una connexió seguint una de les directrius de la geometria de l'habitatge. Amb aquest simple gest, es permet eliminar un espai circulatori que ocupava part de la façana per oferir-lo a una nova estança d'estudi, recollir l'estar-menjador de circulacions invasives, concedint un recorregut més directe cap a l'àmbit volgut i crear perspectives més profundes.











