19ME
L'HOSPITALET DE LLOBREGAT
2019
Reforma d'un àtic
Arquitectura i interiorisme
ArcStudi
Marta Martínez Nieto
Fotografia
Descripció
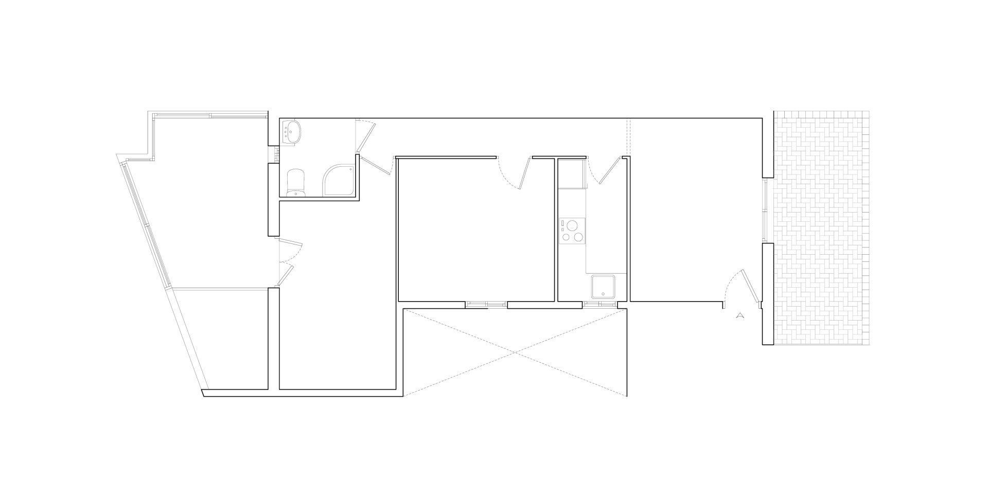
Reforma d'un àtic per un noi jove, a l'Hospitalet de Llobregat.
L'objectiu principal és el de realitzar un canvi de distribució que permeti disminuir els espais perduts de peces de distribució per guanyar-los en estances de més aprofitament en el temps. La configuració resultant de l'espai es basa en una caixa en forma de U ubicada en la zona central de l'habitatge, la qual fa de filtre entre l'espai privatiu (habitació-estudi) i l'espai comú (estar-menjador-cuina). La part opaca de la caixa no arriba fins el sostre, rematant-se amb una sòbria tarja de vidre que permet retroalimentar de llum natural tots els espais.
Tota la paret mitgera ve acompanyada per una franja de 60 cm de mobiliari pensat per donar servei a cadascun dels espais amb els que connecta. Aquest sistema permet engrandir les estances, suprimint qualsevol tipus d'espai únicament de circulació. A més a més, aquests mobles es transformen per adaptar-se a casuístiques quotidianes diferents.
La protecció solar de la terrassa i de l'interior de l'habitatge es resoldrà amb la incorporació de la Persiana Barcelona, executant una pèrgola que permetrà regular la incidència solar més incisiva, protegir-se de visuals externes i evitar el pas de l'aigua en dies de pluja.
















